新築一戸建て綾瀬市寺尾南2丁目
◇小田急小田原線・相鉄本線・JR相模線『海老名』駅 バス14分 『釜田』停 徒歩1分
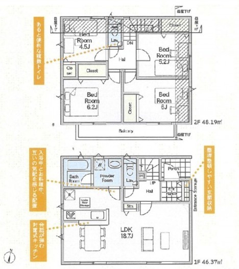
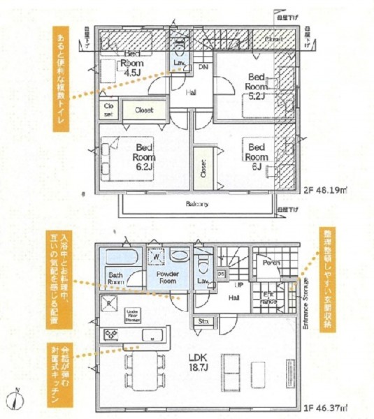
◇土地面積:102.66㎡(31.05坪) 建物面積:94.56㎡(28.60坪)
◇4LDKの新築一戸建て♪
◇小中学校徒歩圏内♪♪
■フレスポ綾瀬・・・約469m(徒歩6分)
■ファミリーマート綾瀬大上一丁目店・・・約692m(徒歩9分)
■クリエイトエス・ディー綾瀬寺尾本町店・・・約471m(徒歩6分)
■医療法人社団医誠会湘陽かしわ台病院・・・約2,131m(徒歩27分)
■綾瀬寺尾郵便局・・・約1,011m
物件概要
- 所在地
- 綾瀬市寺尾南2丁目
- 価格
- 3,180 万円
- 交通
-
小田急小田原線 海老名駅 バス14分乗車 バス停釜田 まで 徒歩1分
相鉄本線 海老名駅 バス14分乗車 バス停釜田 まで 徒歩1分
JR相模線 海老名駅 バス14分乗車 バス停釜田 まで 徒歩1分
- 接道状況
- 東側 公道4m 間口約10.9m
- 土地面積
- 公簿 102.66㎡ (31.05坪)
- 建物面積
- 94.56㎡ (28.60坪)
- 間取り
- 4LDK
- 築年数
- 2026年 (令和8) 6月 完成予定
- 建ぺい率
- 60%
- 容積率
- 100%
- 土地権利
- 所有権
- 構造および階数
- 木造 木造スレート葺又はアスファ ルトシングル葺又はガルバリウム鋼板葺2階建 造 地上2階建
- 小学校区
- 寺尾 (380m)
- 中学校区
- 綾北 (550m)
- 私道負担
- 地目
- 宅地
- 現況
- 空
- 引渡時期
- 期日指定 2026年7月 下旬
- 駐車場
- 有 1台
- 上水道
- 公共
- 下水道
- 公共
- ガス
- プロパン個別
- 都市計画
- 市街化区域
- 用途地域
- 1種低層
- 建築確認番号
- 第KBI-SGM26-10-0252号
- 設備・条件
- システムキッチン、カウンターキッチン、シャンプードレッサー、洗浄便座、浴室乾燥機、追い焚き、複層ガラス、モニタ付インターホン、ペット可、床下収納、トイレ2箇所
- 備考
- 取引態様
- 仲介
その他周辺物件
-
中古一戸建て綾瀬市***
綾瀬市****
間取り有 ペット可 接道6m以上 駐車場1台無料 上下水道完備更新日:2026.03.29
-
新築一戸建て綾瀬市寺尾釜田2丁目B号棟
綾瀬市寺尾釜田2丁目B号棟
間取り有更新日:2025.11.22
-
中古一戸建て綾瀬市寺尾南2丁目
綾瀬市寺尾南2丁目
間取り有 上下水道完備更新日:2026.03.05
-
PRICE DOWN新築一戸建て綾瀬市***
綾瀬市****
間取り有 築10年以内 ペット可 駐車場1台無料 上下水道完備更新日:2026.04.18
-
新築一戸建て綾瀬市***
綾瀬市****
間取り有 築10年以内 駐車場2台可 ペット可 駐車場1台無料 上下水道完備更新日:2026.04.02
この物件は42人の
方が興味を持っています


