新築一戸建て綾瀬市寺尾釜田2丁目B号棟
☆長期優良住宅
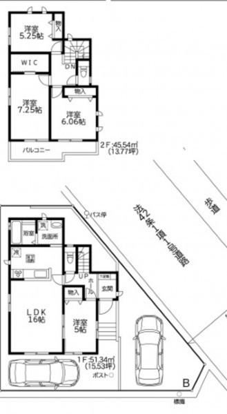
☆お子さんのいる家庭にピッタリな4LDK
☆1階にはリビングと洋室がございます!
☆駐車スペース2台分あり(車種による)
さくらチャイルドセンター 550m
綾瀬幼稚園 580m
寺尾小学校 370m
綾北中学校 950m
エイビイ 600m
物件概要
- 所在地
- 綾瀬市寺尾釜田2丁目B号棟
- 価格
- 3,990 万円
- 交通
-
小田急小田原線 海老名駅 バス25分乗車 バス停綾瀬高校 まで 徒歩4分
相鉄本線 海老名駅 バス25分乗車 バス停綾瀬高校 まで 徒歩4分
JR相模線 海老名駅 バス25分乗車 バス停綾瀬高校 まで 徒歩4分
- 接道状況
- 北東側 公道8.2m
南東側 公道4.5m - 土地面積
- 124.34㎡ (37.61坪)
- 建物面積
- 96.88㎡ (29.30坪)
- 間取り
- 4LDK
- 築年数
- 2026年 (令和8) 7月 完成予定
- 建ぺい率
- 60%
- 容積率
- 200%
- 土地権利
- 所有権
- 構造および階数
- 木造 地上2階建
- 小学校区
- 寺尾 (370m)
- 中学校区
- 綾北 (950m)
- 私道負担
- 地目
- 宅地
- 現況
- 建築中
- 引渡時期
- 相談
- 駐車場
- 有 2台
- 上水道
- 公共
- 下水道
- 公共
- ガス
- 都市ガス
- 都市計画
- 市街化区域
- 用途地域
- 1種中高
- 設備・条件
- システムキッチン、カウンターキッチン、シャンプードレッサー、洗浄便座、浴室乾燥機、追い焚き、複層ガラス、ウォークインクローゼット、モニタ付インターホン、ペット可、駐車場2台分、床下収納、トイレ2箇所
- 備考
-
☆長期優良住宅
☆お子さんのいる家庭にピッタリな4LDK
☆1階にはリビングと洋室がございます!
☆駐車スペース2台分あり(車種による) - 取引態様
- 仲介
その他周辺物件
-
新築一戸建て綾瀬市寺尾釜田2丁目A号棟
綾瀬市寺尾釜田2丁目A号棟
間取り有 築10年以内 駐車場2台可 ペット可 4LDK以上 南面バルコニー 上下水道完備更新日:2025.11.23
-
新築一戸建て綾瀬市寺尾釜田3丁目
綾瀬市寺尾釜田3丁目
間取り有 築10年以内 南向き リフォーム済 駐車場2台可 ペット可 4LDK以上 駐車場1台無料 上下水道完備更新日:2026.02.13
-
PRICE DOWN新築一戸建て綾瀬市***
綾瀬市****
間取り有 築10年以内 駐車場2台可 ペット可 4LDK以上 駐車場1台無料 上下水道完備更新日:2026.02.12
-
新築一戸建て綾瀬市寺尾釜田1丁目3号棟
綾瀬市寺尾釜田1丁目3号棟
間取り有 築10年以内 駐車場2台可 ペット可 50坪以上 4LDK以上 駐車場1台無料 上下水道完備更新日:2026.01.15
-
新築一戸建て綾瀬市寺尾釜田1丁目2号棟
綾瀬市寺尾釜田1丁目2号棟
間取り有 築10年以内 駐車場2台可 ペット可 50坪以上 4LDK以上 駐車場1台無料 上下水道完備更新日:2026.01.15
この物件は248人の
方が興味を持っています


