マンション南えびな杉久保サンパルク650 B街区4号棟
◇新規内装リノベーション済み!!
◇南向きのお部屋です♪
◇小学校徒歩5分以内!
◇ペット飼育可♪(使用細則あり)
◇エレベーター停止階住居
■そうてつローゼン杉久保店・・・約260m(徒歩4分)
■杉久保富谷児童公園・・・約210m(徒歩3分)
■今里クリニック・・・約1500m(徒歩19分)
■セブンイレブン海老名杉久保店・・・約300m(徒歩4分)
■クリエイトSD海老名杉久保店・・・約320m(徒歩4分)
■EXPASA海老名(下り)・・・約900m(徒歩12分)
■杉久保郵便局・・・約750m(徒歩10分)
物件概要
- 所在地
- 海老名市杉久保北4丁目
- 価格
- 1,790 万円
- 交通
-
小田急小田原線 海老名駅 バス18分乗車 バス停サンパルク650 まで 徒歩3分
相鉄本線 海老名駅 バス18分乗車 バス停サンパルク650 まで 徒歩3分
JR相模線 海老名駅 バス18分乗車 バス停サンパルク650 まで 徒歩3分
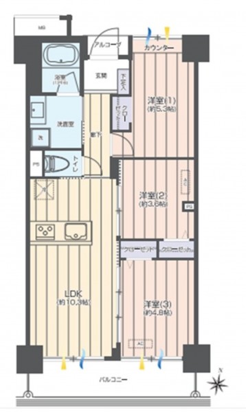
- 専有面積
- 壁芯 53.44㎡
- バルコニー
-
7.49㎡
(南側)
- 間取り
- 3LDK
- 所在階/階数
- 7階/11階
- 築年数
-
1988年
(昭和63)
2月
築38年 - 建ぺい率
- 容積率
- 土地権利
- 所有権
- 構造および階数
- SRC(鉄骨鉄筋コンクリート) 造 地上11階建
- 総戸数
- 108戸
- 小学校区
- 杉久保 (240m)
- 中学校区
- 大谷 (1500m)
- 地目
- 現況
- 空
- 引渡時期
- 即時
- 駐車場
- 空無
- 駐車場月額
- 管理形態
- 全部委託
- 管理方式
- 管理人日勤
- 管理会社
- (株)相鉄リビングサポート
- 管理費
- 8,030円
- 修繕積立費
- 7,550円
- 上水道
- 公共
- 下水道
- 公共
- ガス
- 都市ガス
- 都市計画
- 市街化区域
- 用途地域
- 2種中高
- 設備・条件
- システムキッチン、食器洗浄乾燥機、シャンプードレッサー、洗浄便座、浴室乾燥機、ペット可、エレベーター、上下水道完備,ペット可
- 備考
-
CATV利用料:500円
◇新規内装リノベーション済み!!
◇南向きのお部屋です♪
◇小学校徒歩5分以内!
◇ペット飼育可♪(使用細則あり)
◇エレベーター停止階住居
※エレベーター停止階住戸(エレベータースキップフロア 停止階1・4・7・10)手3%税込
※組合運営費月額500円、CATV使用料年額6,000円、 - 取引態様
- 仲介
その他周辺物件
-
マンション海老名市***
海老名市****
写真充実 間取り有 ペット可 上下水道完備更新日:2026.02.17
-
マンション南えびな杉久保サンパルク650 B街区3号棟
南えびな杉久保サンパルク650 B街区3号棟
写真充実 間取り有 ペット可更新日:2026.04.12
-
マンション南えびな杉久保サンパルク650 A街区2号棟
南えびな杉久保サンパルク650 A街区2号棟
間取り有 ペット可更新日:2026.04.12
-
マンション海老名市***
海老名市****
写真充実 間取り有 南向き リフォーム済 ペット可 南面バルコニー オートロック 上下水道完備更新日:2026.02.28
-
マンション海老名市***
海老名市****
写真充実 間取り有 南向き 南面バルコニー 上下水道完備更新日:2025.06.13
この物件は140人の
方が興味を持っています


