新築一戸建て綾瀬市深谷南4丁目4号棟
◇カースペースございます♪
◇家計にやさしい都市ガス
◇木造2階建て、4LDK
物件概要
- 所在地
- 綾瀬市深谷南4丁目4号棟
- 価格
- 3,680 万円
- 交通
-
小田急江ノ島線 長後駅 バス12分乗車 バス停深谷原 まで 徒歩4分
- 接道状況
- 南東側 公道5m 間口約2.5m
- 土地面積
- 109.08㎡ (32.99坪)
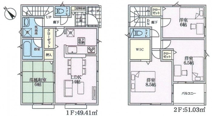
- 建物面積
- 100.44㎡ (30.38坪)
- 間取り
- 4LDK
- 築年数
- 2026年 (令和8) 6月 完成予定
- 建ぺい率
- 60%
- 容積率
- 150%
- 土地権利
- 所有権
- 構造および階数
- 木造 地上2階建
- 小学校区
- 綾瀬
- 中学校区
- 綾瀬
- 私道負担
- なし
- 地目
- 宅地
- 現況
- 建築中
- 引渡時期
- 相談
- 駐車場
- 有
- 上水道
- 公共
- 下水道
- 公共
- ガス
- 都市ガス
- 都市計画
- 市街化区域
- 用途地域
- 1種低層
- 建築確認番号
- R08SHC102881
- 設備・条件
- システムキッチン、カウンターキッチン、シャンプードレッサー、洗浄便座、浴室乾燥機、追い焚き、複層ガラス、モニタ付インターホン、ペット可、床下収納、トイレ2箇所
- 備考
- 自治会費:2400円/年
- 取引態様
- 仲介
その他周辺物件
-
NEW新築一戸建て綾瀬市深谷南4丁目2号棟
綾瀬市深谷南4丁目2号棟
間取り有 築10年以内 ペット可 4LDK以上 駐車場1台無料 上下水道完備更新日:2026.04.13
-
NEW新築一戸建て綾瀬市深谷南4丁目3号棟
綾瀬市深谷南4丁目3号棟
間取り有 築10年以内 ペット可 4LDK以上 駐車場1台無料 上下水道完備更新日:2026.04.13
-
新築一戸建て綾瀬市深谷南4丁目1号棟
綾瀬市深谷南4丁目1号棟
間取り有 築10年以内 ペット可 駐車場1台無料 上下水道完備更新日:2026.04.13
-
中古一戸建て綾瀬市***
綾瀬市****
間取り有 駐車場2台可 ペット可 4LDK以上 駐車場1台無料更新日:2026.03.28
-
中古一戸建て綾瀬市***
綾瀬市****
間取り有 築10年以内 駐車場2台可 ペット可 駐車場1台無料更新日:2026.02.08
この物件は33人の
方が興味を持っています


