新築一戸建て海老名市国分寺台2丁目1号棟
◇2025年10月完成の新築一戸建て♪♪
◇小田急小田原線『海老名』 バス16分 『国分寺台第6』歩1分
◇並列2台駐車可! 全2棟の制震装置付新築住宅♪
◇家族皆が豊かに暮らせる住環境
◇スーパーや学校、公園、金融機関などが徒歩10分圏内に揃う便利な立地!
◇低層住宅エリアのため長閑で落ち着いた住環境♪
◇前面道路も広く歩きやすいため、小さいお子様連れのご家庭でも安心です♪
■そうてつローゼン海老名店・・・約246m
■ユーコープ大谷店・・・約767m
■セブンイレブン綾瀬早川虚空蔵橋店・・・約942m
■ミニストップ海老名大谷店・・・約846m
■海老名大谷郵便局・・・約459m
■コジマ×ビックカメラ海老名店・・・約1385m
■島忠ホームズ海老名店・・・約1390m
■たちばな保育園・・・約327m
■旭たちばな幼稚園・・・約494m
■おとぎ保育園・・・約1066m
物件概要
- 所在地
- 海老名市国分寺台2丁目1号棟
- 価格
- 4,580 万円
- 交通
-
小田急小田原線 海老名駅 バス16分乗車 バス停国分寺台第6 まで 徒歩1分
相鉄本線 海老名駅 バス16分乗車 バス停国分寺台第6 まで 徒歩1分
JR相模線 海老名駅 バス16分乗車 バス停国分寺台第6 まで 徒歩1分
- 土地面積
- 127.64㎡ (38.61坪)
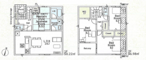
- 建物面積
- 97.20㎡ (29.40坪)
- 間取り
- 4LDK
- 築年数
- 2025年 (令和7) 10月 完成予定
- 建ぺい率
- 50%
- 容積率
- 80%
- 土地権利
- 所有権
- 構造および階数
- 木造 地上2階建
- 小学校区
- 大谷 (126m)
- 中学校区
- 大谷 (982m)
- 私道負担
- 地目
- 現況
- 建築中
- 引渡時期
- 相談
- 駐車場
- 2台
- 上水道
- 公共
- 下水道
- 公共
- ガス
- プロパン個別
- 都市計画
- 市街化区域
- 用途地域
- 1種低層
- 建築確認番号
- 第KBI-SGM25-10-1861号
- 設備・条件
- システムキッチン、カウンターキッチン、シャンプードレッサー、洗浄便座、浴室乾燥機、追い焚き、複層ガラス、ウォークインクローゼット、モニタ付インターホン、ペット可、駐車場2台分、トイレ2箇所
- 備考
- 取引態様
- 仲介
その他周辺物件
-
新築一戸建て海老名市国分寺台2丁目2号棟
海老名市国分寺台2丁目2号棟
写真充実 間取り有 築10年以内 南向き リフォーム済 駐車場2台可 ペット可 4LDK以上 駐車場1台無料 南面バルコニー 上下水道完備更新日:2025.10.27
-
中古一戸建て海老名市***
海老名市****
写真充実 間取り有 築10年以内 駐車場2台可 ペット可 4LDK以上 駐車場1台無料 上下水道完備更新日:2025.11.09
-
中古一戸建て海老名市***
海老名市****
間取り有 南向き 駐車場2台可 ペット可 4LDK以上 接道6m以上 駐車場1台無料 南面バルコニー 上下水道完備 オール電化 オール電化住宅更新日:2025.09.23
-
新築一戸建て海老名市国分寺台1丁目2号棟
海老名市国分寺台1丁目2号棟
間取り有 築10年以内 駐車場2台可 ペット可 接道6m以上 駐車場1台無料 上下水道完備更新日:2025.10.06
-
中古一戸建て海老名市***
海老名市****
間取り有 築10年以内 駐車場2台可 ペット可 4LDK以上 接道6m以上 駐車場1台無料 上下水道完備更新日:2025.11.05
この物件は292人の
方が興味を持っています


