中古一戸建て海老名市上今泉5丁目
◆土地50坪以上!!
◆閑静な住宅街♪
◆都市ガス
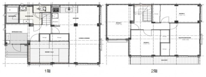
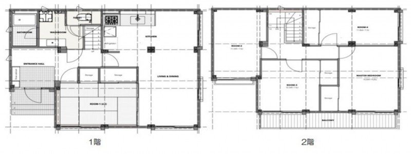
◆土地面積 175.30m2(53.02坪) 建物面積 延 118.02m2(35.70坪)
・業務スーパーまで約800m
物件概要
- 所在地
- 海老名市上今泉5丁目
- 価格
- 3,580 万円
- 交通
-
相鉄本線 かしわ台駅 まで 徒歩15分
小田急小田原線 海老名駅 バス21分乗車 まで 徒歩1分
- 土地面積
- 175.30㎡ (53.02坪)
- 建物面積
- 118.02㎡ (35.70坪)
- 間取り
- 5LDK
- 築年数
-
1987年
(昭和62)
2月
築38年 - 建ぺい率
- 40%
- 容積率
- 80%
- 土地権利
- 所有権
- 構造および階数
- 軽量鉄骨造 地上2階建
- 小学校区
- 上星 (420m)
- 中学校区
- 今泉 (1500m)
- 私道負担
- 地目
- 宅地
- 現況
- 居住中
- 引渡時期
- 相談
- 駐車場
- 有
- 上水道
- 公共
- 下水道
- 公共
- ガス
- 都市ガス
- 都市計画
- 市街化区域
- 用途地域
- 1種低層
- 設備・条件
- 備考
- 取引態様
- 仲介
その他周辺物件
-
新築一戸建て海老名市***
海老名市****
間取り有 築10年以内 駐車場2台可 ペット可 50坪以上 4LDK以上 駐車場1台無料更新日:2025.10.12
-
NEW新築一戸建て海老名市上今泉5丁目
海老名市上今泉5丁目
間取り有 築10年以内 南向き 駐車場2台可 ペット可 50坪以上 4LDK以上 駐車場1台無料 南面バルコニー 上下水道完備更新日:2025.11.02
-
中古一戸建て海老名市***
海老名市****
間取り有 ペット可 駐車場1台無料 上下水道完備更新日:2025.11.06
-
新築一戸建て海老名市***
海老名市****
写真充実 間取り有 築10年以内 南向き リフォーム済 駐車場2台可 ペット可 50坪以上 4LDK以上 駐車場1台無料 南面バルコニー 上下水道完備更新日:2025.10.25
-
中古一戸建て海老名市***
海老名市****
間取り有 ペット可 4LDK以上 駐車場1台無料 上下水道完備更新日:2025.11.06
この物件は120人の
方が興味を持っています


