土地海老名市国分南3丁目
◇小田急小田原線「海老名」駅よりバス5分「国分寺台第1」停徒歩1分
小田急小田原線「海老名」駅より徒歩25分
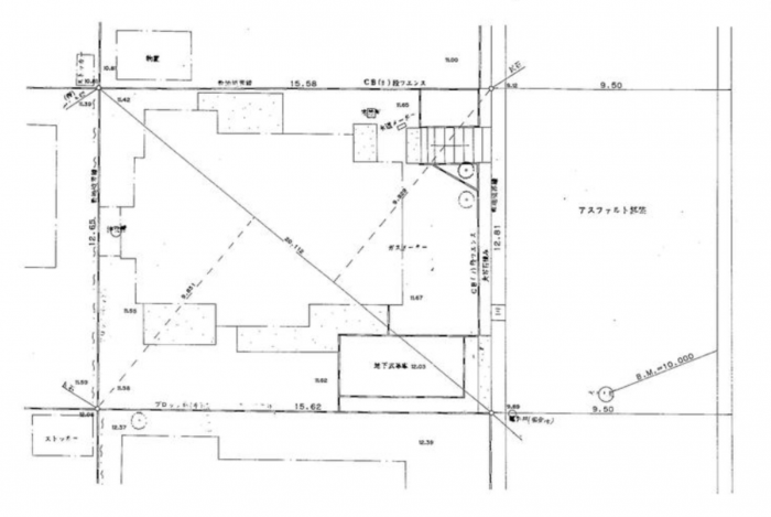
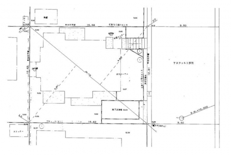
◇土地面積 198.67m2(60.09坪)
勝瀬保育園 徒歩10分
ベストキッズ保育園 徒歩8分
ひさご塚公園 徒歩2分
物件概要
- 所在地
- 海老名市国分南3丁目
- 価格
- 4,500 万円
- 交通
-
小田急小田原線 海老名駅 バス5分乗車 バス停国分寺台第1 まで 徒歩1分
小田急小田原線 海老名駅 まで 徒歩25分
- 接道状況
- 東側 公道9.5m 間口約12.8m
- 土地面積
- 公簿 198.67㎡ (60.09坪)
- 建ぺい率
- 50%
- 容積率
- 80%
- 土地権利
- セットバック
- 無し
- 小学校区
- 海老名 (800m)
- 中学校区
- 海老名 (600m)
- 私道負担
- 建築条件
- ー
- 地目
- 宅地
- 現況
- 上物有
- 引渡時期
- 相談
- 上水道
- 公共
- 下水道
- 公共
- ガス
- 都市ガス
- 都市計画
- 市街化区域
- 用途地域
- 1種低層
- 設備・条件
- 備考
- 取引態様
- 仲介
その他周辺物件
-
土地海老名市***
海老名市****
写真充実 区画図有 南向き ペット可 接道6m以上 上下水道完備更新日:2025.10.19
-
土地海老名市国分南3丁目No.1
海老名市国分南3丁目No.1
写真充実 区画図有 ペット可 上下水道完備更新日:2025.11.20
-
土地海老名市国分南3丁目No.2
海老名市国分南3丁目No.2
写真充実 区画図有 ペット可 上下水道完備更新日:2025.11.20
-
PRICE DOWN土地海老名市国分南4丁目
海老名市国分南4丁目
写真充実 区画図有 ペット可更新日:2025.12.15
-
土地海老名市***
海老名市****
区画図有 ペット可 接道6m以上 上下水道完備更新日:2025.10.25
この物件は124人の
方が興味を持っています


